Family Home Complete Renovation, Peaslake
Kitchen/Dining, Utility
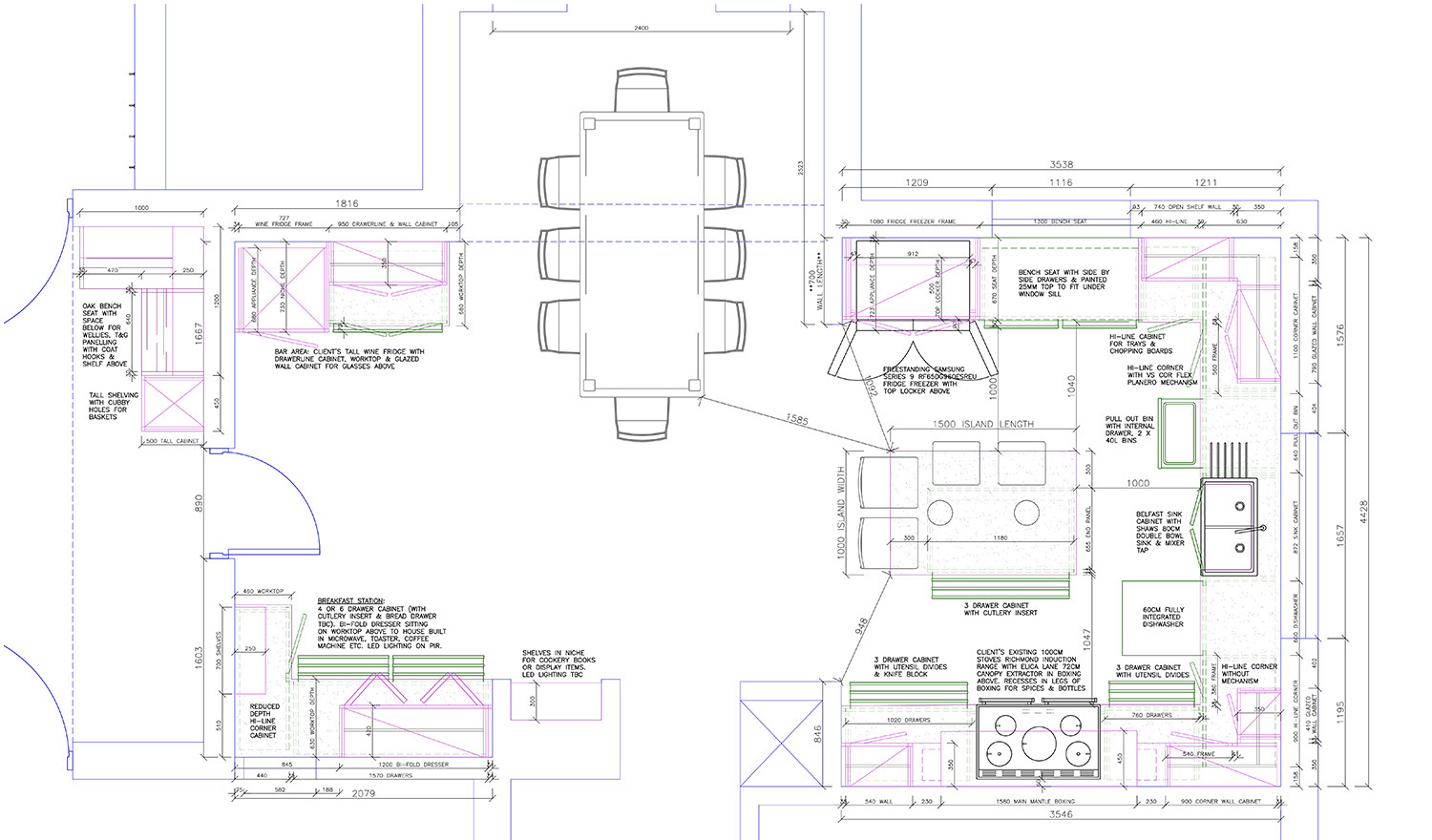
A complete renovation of this house was undertaken and a small extension built to house the utility room. A dividing wall was knocked down and the kitchen moved into the original dining room, creating a large kitchen/dining room and incorporating a window seat, breakfast dresser and a ‘bar’ away from the main cooking area. Cabinetry made by Gillerson Furniture.
