Grade II Listed House Renovation & Modern Extension, Chiddingfold
Kitchen, Utility, Pantry, Boot Room, Hallway
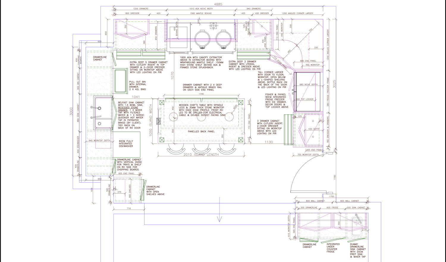
A stunning contemporary extension was added to this 17th century grade II listed family home to accommodate a dining/living space and so the kitchen was moved into what was originally the family room. The utility, boot room, pantry and hallway remained in the original house and were renovated sympathetically to blend and work with the wooden beams, low ceilings and curved walls. We had to work the joinery around some interesting architectural features but, along with the client’s choice of earthy colour palette and traditional flooring, tiling etc, the overall effect is beautiful. Cabinetry made by Charter Walk Kitchens.
